+++ EINFAMILIENHAUS IN BELIEBTER LAGE +++ von Korschenbroich

7 Fotos und Anhänge ansehen
Zartmann & Dietz Immobilien
Siebenmorgen 25, 51427 Bergisch Gladbach

Ansicht

Küche

Küche

Küche

Kamin

Terrasse

Garten

+++ EINFAMILIENHAUS IN BELIEBTER LAGE +++ von Korschenbroich

Eckdaten

  • Art Einfamilienhaus
  • Lage 41352 Korschenbroich
  • Kaufpreis 1.100.000,00
  • Wohnfläche ca. 250
  • Grundstück ca. 1.100
  • Zimmer 8
  • Baujahr 1968
  • Heizungsart Holz-Pelletheizung
  • Einbauküche ja
  • Gäste-WC ja
  • Stellplatztyp Aussenstellplatz, Garage
  • Stellplatzanzahl 1
  • Garagenanzahl 1
  • Vermietet nein
  • Bezugstermin nach Vereinbarung
  • Bodenbelag Fliesen, Parkett
  • Immobilien-ID 3398
  • Provision 2 % zzgl. MwSt.

Immobilie

Das charmante Einfamilienhaus liegt idyllisch in Korschenbroich und zeichnet sich durch eine herausragende Lage aus, die überwiegend aus freistehenden Einfamilienhäusern besteht. In den 80er Jahren wurde das Anwesen aufwendig saniert. Im Jahr 2004 wurde der Anbau errichtet und bietet seitdem eine hohe Wohnqualität. Desweiteren überzeugt nicht nur die erstklassige Anbindung an die örtlichen Annehmlichkeiten, sondern auch die Vorzüge einer naturnahen Umgebung. In unmittelbarer Nähe des Anwesens erstreckt sich die malerische Niers, deren ruhige Ufer zu erholsamen Spaziergängen und entspannten Stunden in der Natur einladen.

Lage

Die Lage des Objekts selbst präsentiert sich als ruhige und familienfreundliche Wohnstraße, die eine angenehme Atmosphäre für das tägliche Leben schafft. Die Anbindung an lokale Einkaufsmöglichkeiten, Schulen und öffentliche Verkehrsmittel ist ausgezeichnet, was einen hohen Grad an Wohnkomfort und Lebensqualität gewährleistet. Insgesamt bietet die Lage eine harmonische Balance zwischen urbanem Leben, historischem Flair und naturnahem Wohnen.

Ausstattung

Die Küche, als Herzstück des Hauses, befindet sich im Erdgeschoss und ist mit einer individuell geplanten Kochinsel ausgestattet. Diese gewährleistet nicht nur eine optimale Raumnutzung, sondern schafft auch einen kommunikativen Mittelpunkt, ideal für geselliges Beisammensein. Die Ausstattung des gesamten Hauses spiegelt einen zeitgemäßen Lebensstil wider und wurde mit Blick auf Funktionalität und Ästhetik ausgewählt. Die durchdachte Kombination von modernen Elementen und gemütlichen Details schafft eine harmonische Wohnatmosphäre, die den Bewohnern höchsten Komfort bietet. Im Koch- und Essbereich ist ein individueller Fliesenboden verlegt, in den übrigen Räumen ist Parkettboden verlegt. Das Haus ist voll unterkellert und bietet somit umfangreiche zusätzliche Nutzfläche.
Die Heizungsanlage wurde 2022 umgebaut und wird nun mit Pellets betrieben.

Keller Vermietet Gäste-WC Terrasse vorhanden Einbauküche

Sonstiges

Diese Objektangaben wurden für Sie mit besonderer Sorgfalt erstellt. Da jedoch alle Daten ausschließlich auf Angaben des Verkäufers basieren, können wir hierfür keine Haftung übernehmen.

Energieausweisangaben

  • Enerigeausweistyp Bedarfsausweis
  • Energiekennwert 226 KWh(m²*a)
  • Energie mit Warmwasser ja
  • Energieausweis erstellt am 15.01.2026
  • Energieausweis gültig bis 14.01.2036
  • Heizungsart Holz-Pelletheizung
  • Befeuerung / Energieträger Pellet

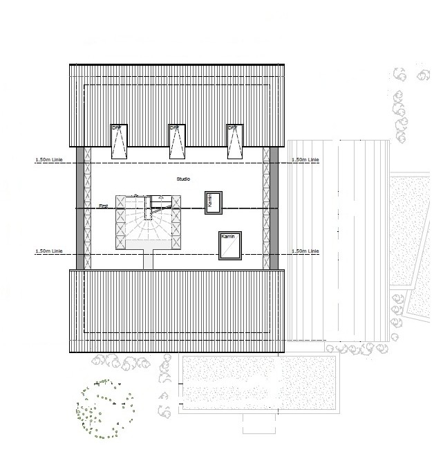
Grundrisse

Wie können wir Ihnen behilflich sein?

Herzlichen Dank für Ihre Anfrage.

Wir werden diese so schnell wie möglich bearbeiten.

Wie können wir Ihnen behilflich sein?
* Pflichtfeld